Vierachs-Überfahr-Tieflade-Anhänger PT 40

Technische Daten

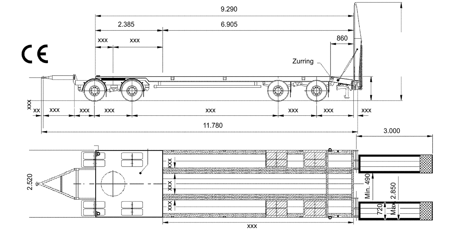
Vierachs-Überfahr-Tieflade-Anhänger.

Federung Mechanisches Ausgleichs-Aggregat mit Parabelfedern, vorne und hinten.

Bodenbelag Nadelholzboden längsverlaufend, Tieflade-Plattform und Auffahrschräge mit 60 mm starken Bohlen belegt. Plattform über dem Drehgestell aus hochfestem Feinkornstahl.

Rampen Einteilige Rampen feuerverzinkt (offene Bauweise) mit eingelegtem, längsverlaufendem Nadelholzbelag, 50 mm stark. Rampenverschub von 2.850 außen auf 490 mm innen. Rampenhaltegestänge mit Einhängemöglichkeit an der Rampe.

PT 40,0 Profi

Gesamtgewicht 30.000 kg
Eigengewicht 6.100 kg
Nutzlast 23.900 kg
Bereifung 12-fache Radialbereifung, Größe 235 / 75 R 17.5
Bemerkungen
  • Ausnahmegenehmigung erforderlich
  • Nur unteilbare Ladung zulässig

PT 40,0 Profi

Gesamtgewicht 24.000 kg
Eigengewicht 6.100 kg
Nutzlast 17.900 kg
Bereifung 12-fache Radialbereifung, Größe 235 / 75 R 17.5
Bemerkungen
  • Keine Ausnahmegenehmigung erforderlich
  • Teilbare Ladung zulässig
3-achs-plateau_04.jpg
3-achs-plateau_02.jpg
3-achs-plateau_01.jpg
4-achs-plateau_03.jpg